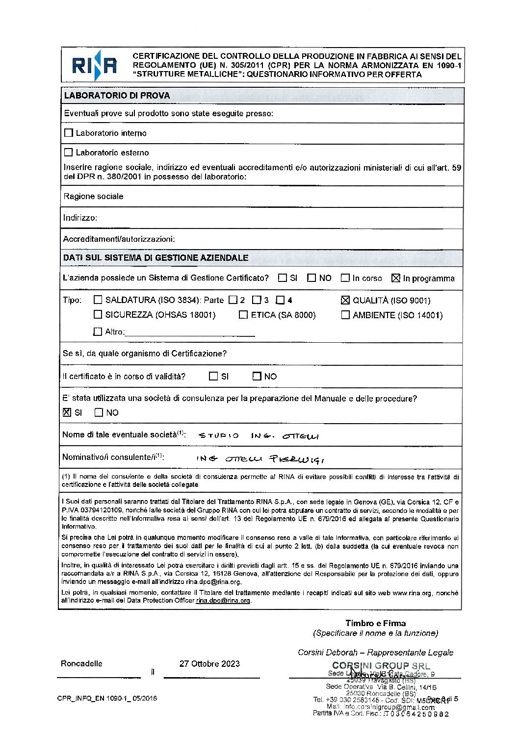
Certificazioni e Sistema di Gestione Qualità
qualità
GARANTIRE L'ECCELLENZA
Certificazioni aziendali
Le nostre certificazioni testimoniano l’impegno per la qualità, la sicurezza e l’affidabilità nelle lavorazioni. Con standard ISO e EN 1090 RINA, garantiamo processi e prodotti conformi ai più alti requisiti del settore industriale.

